Құралдар
15 кВ американдық кабельдік қораб
  • 15 кВ американдық кабельдік қораб15 кВ американдық кабельдік қораб

15 кВ американдық кабельдік қораб

DFW түріндегі 15кВ Kexun компаниясы өндірілген американдық Кабельдік қондырғы өзінің керемет өнімділігі, стандартталған дизайн және әдемі келбеті үшін кабельдік техникада кеңінен қолданылады және ірі индустриалды парктер, тұрғын үйлер, қала тығыз қоныстанған аудандар, коммерциялық орталықтар және көп қабатты ғимараттар сияқты кеңінен танылады.
Үлгі: DFW
Бренд: KEXEXR

● Сипаттама сипаттамасы

15kv American Cable Branch Box

● DFW типінің сипаттамасы 15 кВ американдық кабельдік қорап

◆ Дизайн мүмкіндігі

▶ Жиек дизайны: Барлық кабельдік коннекторлар, қосқыштар және басқа компоненттері тығыз құрылымы мен шағын ғарыш кәсібі бар металл қорапқа біріктірілген.

▶ Төмен модульдік: Еуропалық филиалмен салыстырғанда американдық филиалдың өрісімен салыстырғанда әлсіздер бар, ал әдетте тізбектердің белгіленген санын (мысалы, 2 ~ 6 тізбек) қабылдайды.

▶ Металл қабық қорғауы: Қорап негізінен тот баспайтын болаттан немесе мырышталған болаттан жасалған, әдетте, қорғау деңгейі, әдетте, IP54 (шаң өткізбейтін және шашыратқыш), ал кейбір жоғары модельдер IP65-ге жете алады.

 

◆ Кабельдік байланыс режимі

Американдық кабельдік аксессуарларды қолдану

▶ 15 кВ американдық кабельдік қорабы Тікелей штепсельдік ұшты қолдау үшін 200A немесе 600A шынтақ қосқышын, мысалы, 200A немесе 600A шынтақ қосқышын (LoadBreighn қосқышы) пайдаланыңыз (арнайы жұмыс істемеуі қажет).

▶ Кабель қосқыштары толығымен оқшауланған немесе жартылай оқшауланған, ал кейбір тірі бөлшектер ашылуы мүмкін, сондықтан оқшаулағыш қорғаныс қабаттарымен ынтымақтастық қажет.

▶ Түрлі кабельдерге жарамды: мыс кабелі немесе алюминий кабелі қолдау көрсетіледі, ал көлденең қимасы әдетте 50 мм-ден 500 мм-ге дейін өзгереді.

 

◆ Қауіпсіздік және қорғаныс өнімділігі

▶ DFW типі 15 кВ американдық филиал қорабы толығымен жабық құрылым болып табылады: сыртқы қоршаған ортаға әсерді азайту және электр тогының соғу қаупін азайту.

▶ Кіріктірілген аутр (міндетті емес): шамадан тыс кернеудің әсерін болдырмаңыз және кабельдер мен жабдықтарды қорғаңыз.

▶ Ақаулықтың индикаторы функциясы (кейбір модельдер): флип-флоп немесе жарықдиодты ақаулықтар индикаторымен жабдықталған, ол ақаулық нүктесін тез табуға ыңғайлы.


◆ Қоршаған ортаға бейімделу

▶ Метел-ауа-райына төзімділігі: 15 кВ американдық кабельдік қорабы - ол жұмыс ортасына арналған -30 ℃ ~ + 50 ℃ және ұзақ мерзімді ашық жерде жұмыс істеуге жарамды.

▶ Коррозияға қарсы емдеу: қораптың беті тұз спрейі мен коррозияға қарсы тұру үшін қораптың беті пластиктен, мырышталған және басқа процестермен шашыралған.

 

◆ Орнату және техникалық қызмет көрсету

▶ Ыңғайлы орнату: әдетте тар кеңістіктерге арналған қабырғаға орнатылған немесе еденге орнатылған қондырғы.

▶ Қарапайым техникалық қызмет көрсету: толығымен жабылған дизайн, негізінен техникалық қызмет көрсетусіз, тек бірлескен күйді тексеру қажет.

▶ Live-Line жұмысы (кейбір модельдер): қуат сөндіру уақытын азайту үшін арнайы оқшаулағыш жұмыс ағынын қолданыңыз.


◆ Шектеулер

× Ауылшаруашылығы нашар: ілмектер саны бекітілген, ал жабдықтарды кейінгі қуаттылықты кеңейту үшін ауыстыру қажет.

× Төмен қорғау деңгейі: кейбір модельдер шаңды қорғайтын және еуропалық фила қораптары сияқты су өткізбейді.

 

● DFW типінің техникалық параметрі 15 кВ американдық кабельдік қорабы

Зат

200А (филиалдық желі)

600А (негізгі тор)

Номиналды кернеу

15кв

15/25 кВ

Номиналды ток

200А

600А

Бағаланған қысқа мерзімді токпен шектеледі

16KA / S

40KA / S

1 Кернеумен жұмыс жасайтын жиілік

42 кВ

42 кВ

15Min Кернеу тозады

53 кВ

78 кВ

Кернеумен жарықтандыру импульсі

96 кВ

125 кВ

Кернеудің ең аз корона

11KV

19КВ

 

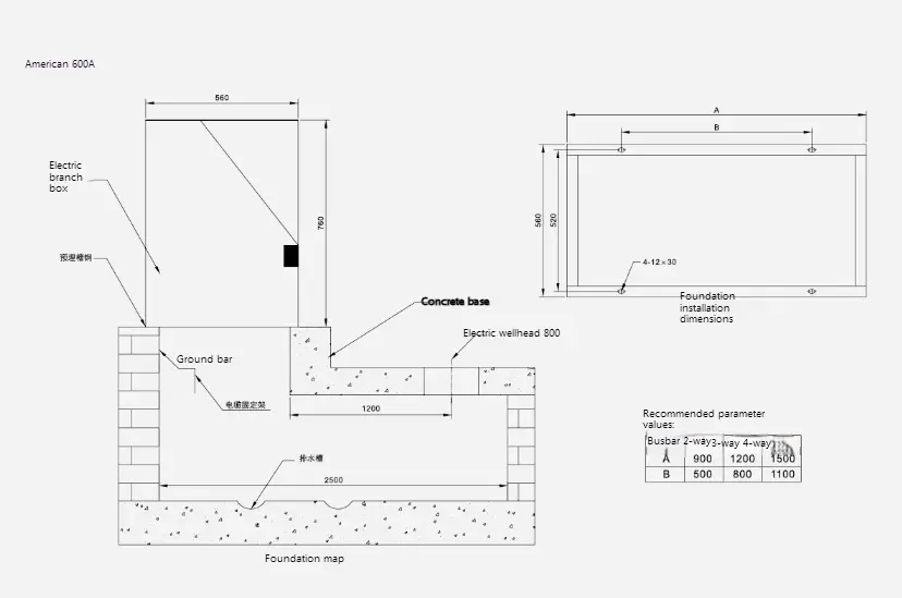
● DFW типінің DFW диаграммасы 15 кВ американдық кабельдік қораптың құрылымының құрылымы

15kv American Cable Branch Box


● DFW түрі 15 кВ американдық кабельдік қораптар қорының құрылымы

15kv American Cable Branch Box15kv American Cable Branch Box

 

Hot Tags: 15кВ Американдық кабельдік филиал қорабы, Қытай зауыттық жеткізушісі, Kexun Operate сапасы
Сұрау жіберу
Байланыс ақпараты
  • Мекенжай

    №228 Вейшики жолы, ЮЭЮК-нің экономикалық даму аймағы, Вэньчжоу қаласы, Жезжiң провинциясы, Қытай

  • Электрондық пошта

    sales01@kexunelectric.com

Кабель тармағына, жоғары кернеуді қондырғыларға, төмен кернеулі коммутаторға немесе бағалар тізіміне қатысты сұраулар үшін бізге электрондық поштаны бізге қалдырыңыз, біз 24 сағат ішінде байланысамыз.
X
Біз cookie файлдарын сізге жақсырақ шолу тәжірибесін ұсыну, сайт трафигін талдау және мазмұнды жекелендіру үшін пайдаланамыз. Осы сайтты пайдалану арқылы сіз cookie файлдарын пайдалануымызға келісесіз. Құпиялылық саясаты
Қабылдамау Қабылдау